2.18 RODINNÝ DŮM 7+KKPraha - Hostivař
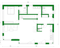
Prostorný dvoupodlažní dům v pražské čtvrti Hostivař nabízí mimořádně velký prostor a je ideálním místem pro vícečlennou rodinu. Dispozičně je řešen jako 7+KK a je postaven v difúzně otevřeném aktivním stěnovém systému ALFADIFU. V přízemí se nachází rozlehlý obývací pokoj s kuchyní, ložnice nebo technická místnost. Z obývacího pokoje vedou dveře na zahradu.
Ve druhém patře jsou 4 samostatné pokoje. Ložnice má vlastní koupelnu s WC, dále je na patře k dispozici prostorná místnost vhodná jako pracovna a samostatná koupelna s WC. Nízkoenergetický dům nabízí dostatek prostoru a komfortu pro pěti až šestičlennou rodinu.

