Dřevostavba na klíč EKONOMY 103, 4kk, 103m2

O domu
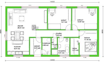
Moderní jednopodlažní dřevostavba Ekonomy 103, 4+KK, má noční klidovou část (ložnice) osazenou samostatně od denní části domu. Dům se zastavěnou plochou 120 m2 je ideálním místem pro čtyřčlennou rodinu, která ocení zejména prostorově výrazné pokoje a odkládací prostory. Výsledný poměr ceny a užitné plochy je tak na nejvyšší úrovni.
Počet osob: 4
| Použitý stěnový systém: |  | 
| Dispozice: | 4 + kk | 
| Zastavěná plocha: | 120 m2 | 
| Celková užitná plocha: | 103 m2 | 
| Cena domu na klíč: | 3 941 490 Kč | 
| *cena domu včetně projektové dokumentace bez základové desky a DPH | |




