Dřevostavba na klíč EKONOMY 106, 4kk, 106m2
O domu
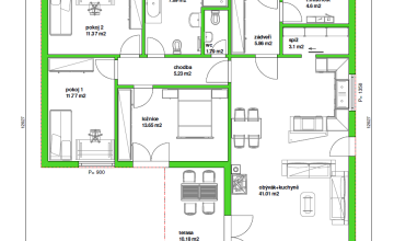
Moderní jednopodlažní dům Ekonomy 106, 4+KK, na zastavěné ploše 125 m2 nabízí dostatek prostoru i pro čtyřčlennou rodinu. Dokonalé propojení se zahradou vytváří terasa přístupná z obývacího pokoje i ložnice zároveň.
Počet osob: 4
| Použitý stěnový systém: |
| Dispozice: | 4 + kk |
| Zastavěná plocha: | 125 m2 |
| Celková užitná plocha: | 106 m2 |
| Cena domu na klíč: | Aktualizujeme ceník |
| *cena domu včetně projektové dokumentace bez základové desky a bez DPH | |

